Hogs Back, Seale, Farnham Hogs Back, Seale, Farnham

Hogs Back, Seale, Farnham

3 bedroom Detached house for sale

£625,000

  • 3 bedroom
  • 1 bathroom
  • 3 reception

Key Features

  • • In need of refurbishment throughout
  • • Two reception rooms with fireplaces
  • • Kitchen and utility room
  • • Three double bedrooms
  • • Family bathroom with separate upstairs w/c
  • • Garage and driveway parking for multiple vehicles
  • • Large level rear garden
  • • No onward chain

Description

Offered to the market with no onward chain, this detached home presents a rare opportunity for complete modernisation and refurbishment throughout. Occupying a generous plot with an impressive frontage, the property boasts well proportioned accommodation offering excellent scope to reconfigure and enhance to suit modern family living. The ground floor currently comprises two reception rooms with fireplaces, kitchen with separate utility room and a downstairs w/c. Upstairs, there are three double bedrooms, a family bathroom and an additional w/c. To the outside, the property benefits from a substantial rear garden, offering significant potential for landscaping, extending, or creating an outdoor entertaining space. The frontage also provides driveway parking, access to a single garage and further scope for improvement. Agent note: there is an additional parcel of land that extends to approximately 2.68 acres which could be bought as a separate lot


Location


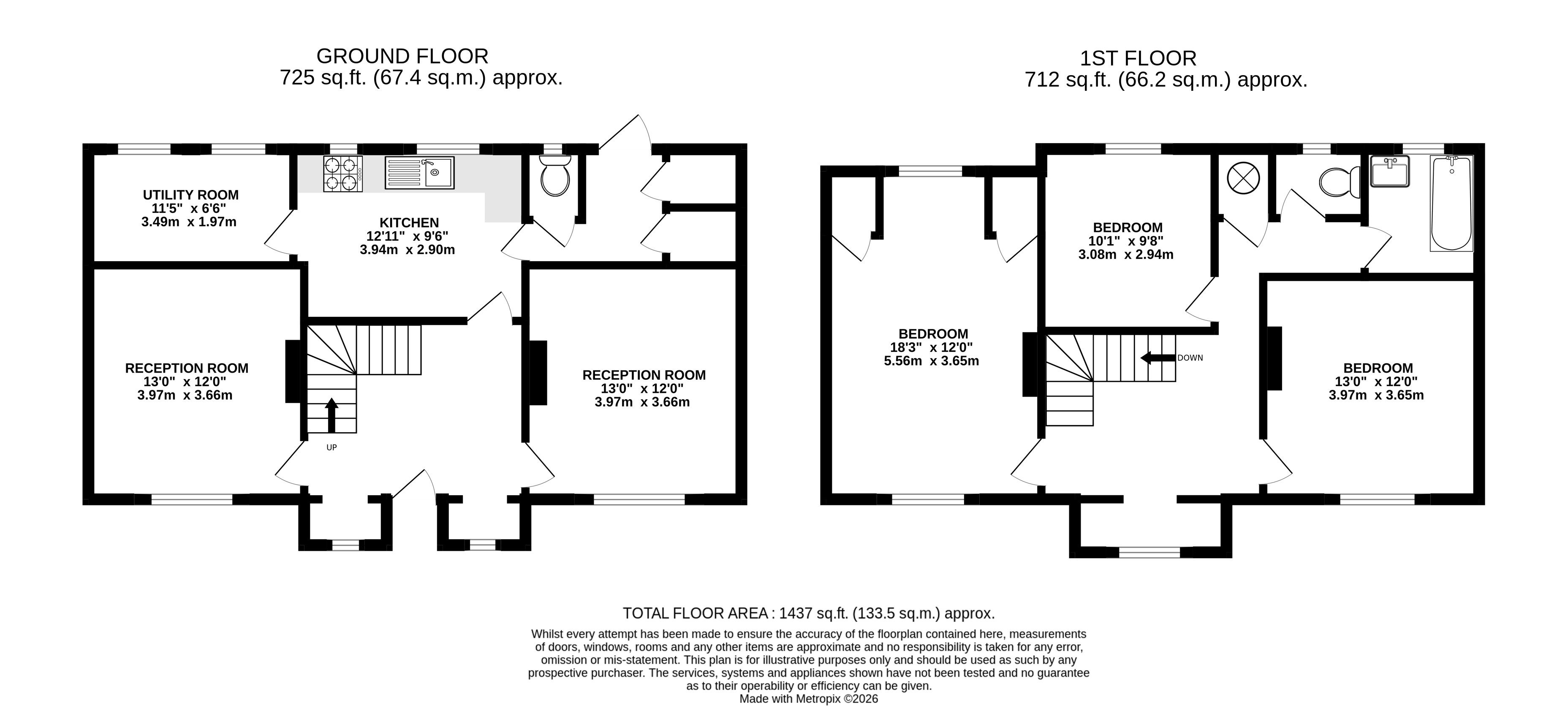
Floorplan

Floorplan

EPC


Farnham Branch

28B Downing Street
Farnham
Surrey
GU9 7PD

Similar Properties

Wrecclesham, Farnham, Surrey
For Sale

Wrecclesham, Farnham, Surrey

3 Bed Semi-detached house For Sale
£425,000
Wrecclesham, Farnham, Surrey
Under Offer

Wrecclesham, Farnham, Surrey

3 Bed Terraced House Under Offer
£350,000
Bentley, Farnham, Hampshire
For Sale

Bentley, Farnham, Hampshire

2 Bed Terraced House For Sale
£350,000