Holybourne, Alton, Hampshire Holybourne, Alton, Hampshire

Holybourne, Alton, Hampshire

3 bedroom House Under Offer

£400,000

  • 3 bedroom
  • 3 bathroom
  • 1 reception

Key Features

  • • 3 bedrooms
  • • 2 en-suites & family bathroom
  • • Fully integrated kitchen
  • • Living dining room with French windows to the garden
  • • Large hallway and downstairs cloakroom
  • • Sun trap garden
  • • Garage and allocated parking

Description

An intriguing and interestingly designed corner house positioned within the highly desirable Barley Fields development built in around 2013. The development lies on the Alton side of Holybourne. This three bedroomed house offers immaculate presentation throughout with accommodation comprising an excellent living dining room with French windows to the garden, a fully equipped kitchen and a cloakroom on the ground floor. On the first floor there are three bedrooms, two with full en-suite shower rooms and a family bathroom. Also of significance there is a garage and parking. The garden enjoys pedestrian access, enclosed and benefits from a southerly orientation with the added benefit of an electric fitted sun awning across the living dining room out onto the patio. Notable for being in an extremely convenient location moments from the development's meadow with children’s playground, easy walking distance to Alton's retail park comprising Wicks, Aldi, Pets at Home, Lidl, Home Bargains, Costa Coffee and Pure Gym. Whilst in the other direction Waitrose and the main line station the latter offering a rail link to London Waterloo. Alton itself offers a variety of national and local shops sufficient for most needs and include Sainsburys, Boots, Iceland, M&S food hall along with a variety of pubs, restaurants, cafes and wine bars. NB A nominal service charge is levied for upkeep of the common areas of the development. Further details upon request.


Location


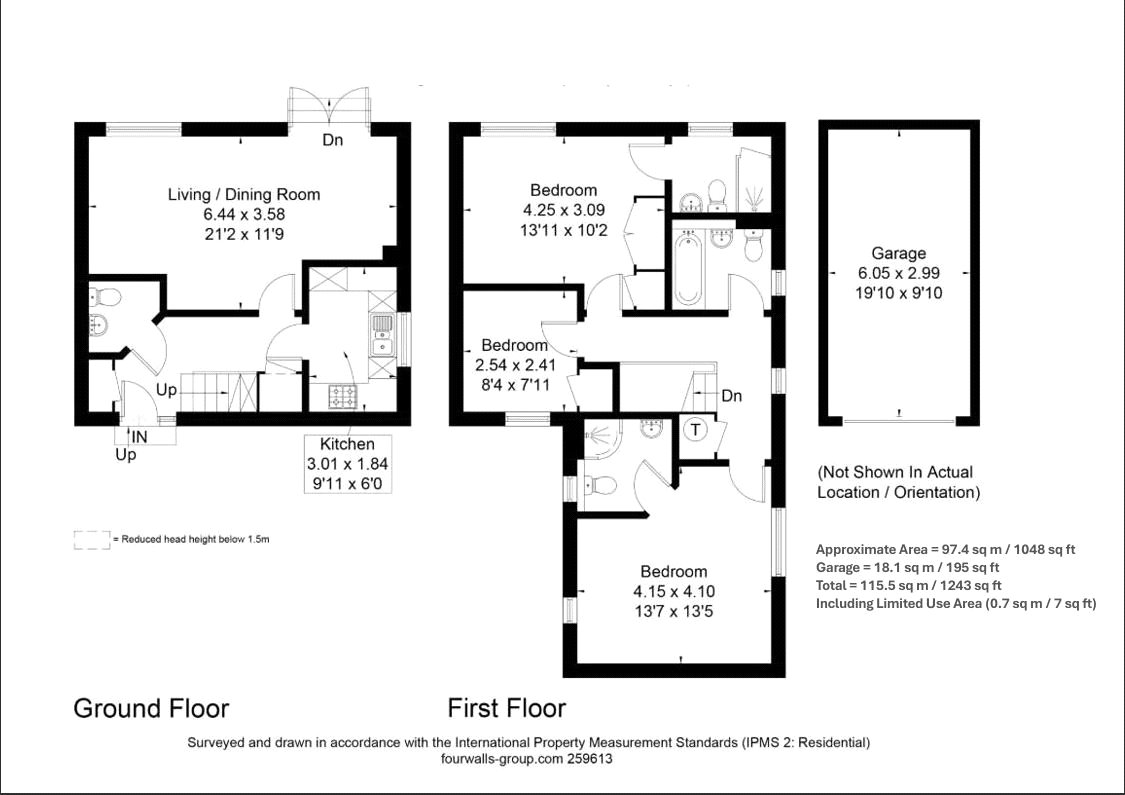
Floorplan

Floorplan

EPC

EPC for Holybourne, Alton, Hampshire

Alton Branch

78 High Street
Alton
Hampshire
GU34 1EN