Godalming, Surrey Godalming, Surrey

Godalming, Surrey

3 bedroom Property Under Offer

£450,000

  • 3 bedroom
  • 2 bathroom
  • 2 reception

Key Features

  • • NO ONWARD CHAIN
  • • Modern three-bedroom end-of-terrace home
  • • Walking distance to Godalming town centre
  • • Well finished and arranged over three floors
  • • Living room and kitchen/dining area with bi-fold doors
  • • Two bedrooms and bathroom on first floor
  • • Bedroom with bathroom and study area on second floor
  • • Circa 100ft rear garden and front courtyard

Description

Offered to the market with no onward chain, this modern three-bedroom end-of-terrace home is ideally located within walking distance of Godalming town centre. Arranged over three well-designed floors, the property is finished to a high standard throughout. The ground floor features a welcoming and spacious hallway, a bright front-facing living room, and an impressive rear kitchen/dining area with bi-fold doors opening directly onto the garden—perfect for modern family living and entertaining. On the first floor are two generously proportioned bedrooms and a contemporary family bathroom, while the second floor offers a further bedroom, a stylish bathroom, and a versatile study area ideal for home working. Externally, the property benefits from a substantial rear garden extending to approximately 100ft, along with an enclosed courtyard to the front. LOCATION The village of Farncombe provides a number of shops including a Co Op, Chemist and a Butchers in addition to several Public Houses. The property is very well placed for Godalming Sports Centre which is just 0.5 miles distant on foot, Godalming Junior School 0.4 mile and Broadwater School 0.7 miles. Farncombe mainline station is a level walk and provides frequent services to London Waterloo approximately 45 minutes. Godalming’s High Street lies around 1.1 miles distant and provides a wider range of shops including Waitrose and Sainsbury’s Superstores. There are also bus services available linking with neighbouring towns and villages including Guildford, which lies approximately 3.5 miles to the north. DIRECTIONS From Godalming town centre, proceed out of town along Meadrow (A3100) towards Guildford. Take the fourth turning left into Kings Road. Continue along whereby the property is found on the right hand side COUNCIL TAX Waverley Borough Council. Council Tax Band D. (Correct at time of publication and is subject to change following a council revaluation after a sale)


Location


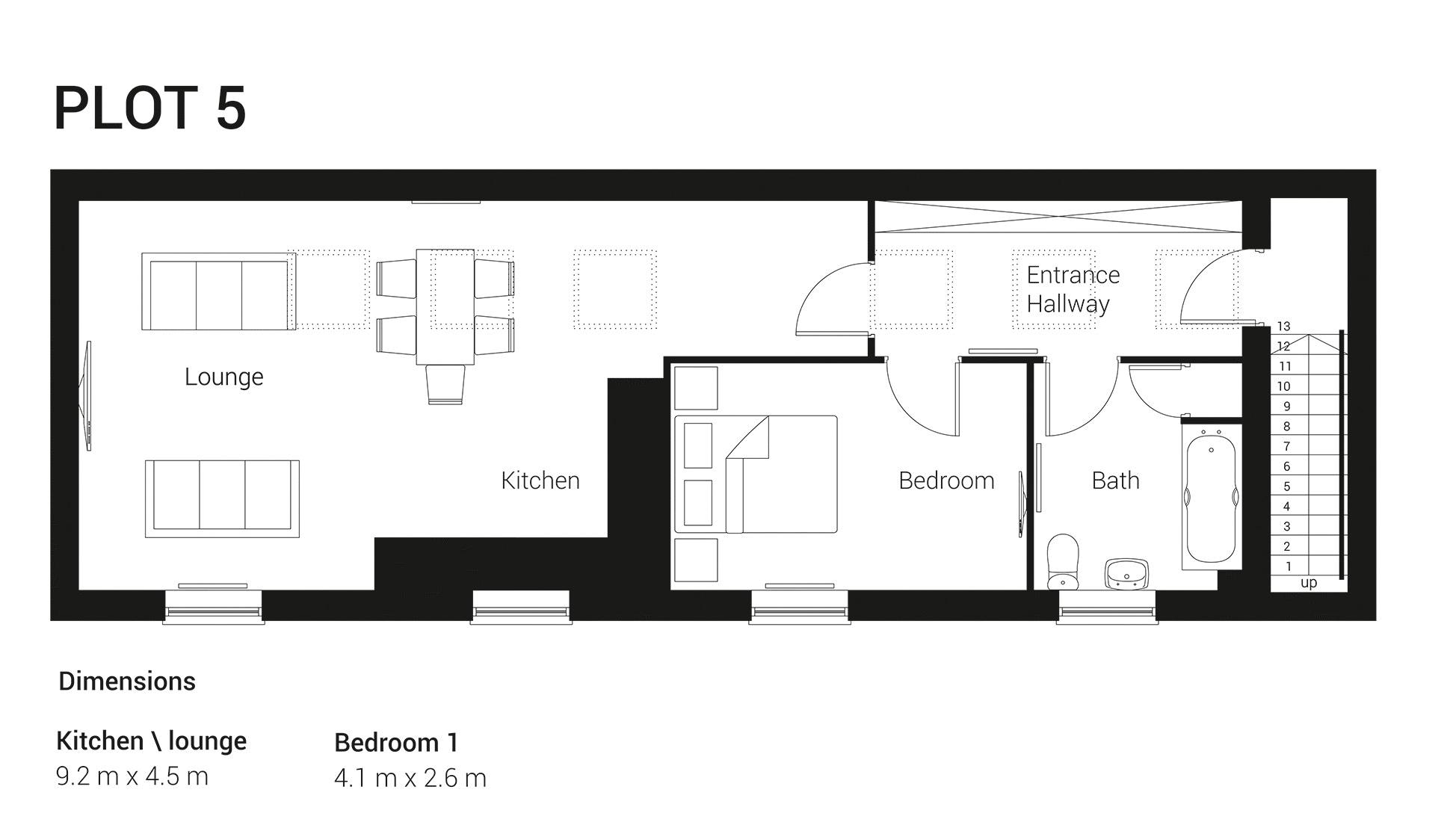
Floorplan

Floorplan

EPC

EPC for Godalming, Surrey

Godalming Branch

47 High Street
Godalming
Surrey
GU7 1AU